Overview
2 Bedroom Terraced House for sale in Cranbrook Road, Doncaster
A well-presented two-bedroom terrace offering generous space, modern interiors and a private rear courtyard. Ideal for first-time buyers or investors, this home sits within easy reach of Doncaster city centre, local shops, schools and excellent commuter links, including Doncaster Train Station, major bus routes and quick road access via the A630.
Guide Price: £100,000 - £110,000
Estimated Rental Income - £700pcm
Welcome to Cranbrook Road — a well-proportioned two-bedroom terrace offering comfortable, flexible living in a spot that puts everyday convenience on your doorstep. Perfect for those stepping onto the ladder or investors seeking a strong rental location, this home combines space, practicality and access to great local amenities.
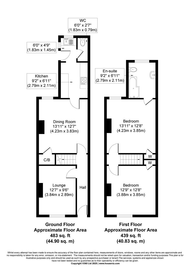
The ground floor features two inviting reception rooms, giving you plenty of scope for a lounge, dining space, home office or hobby area. The modern galley-style kitchen provides excellent storage and workspace, leading through to a rear utility ro...
Read more
Guide Price: £100,000 - £110,000
Estimated Rental Income - £700pcm
Welcome to Cranbrook Road — a well-proportioned two-bedroom terrace offering comfortable, flexible living in a spot that puts everyday convenience on your doorstep. Perfect for those stepping onto the ladder or investors seeking a strong rental location, this home combines space, practicality and access to great local amenities.
The ground floor features two inviting reception rooms, giving you plenty of scope for a lounge, dining space, home office or hobby area. The modern galley-style kitchen provides excellent storage and workspace, leading through to a rear utility room and downstairs WC. Upstairs, you’ll find two well-sized bedrooms and a generous bathroom complete with a shower over bath.
Outside, the private courtyard offers a low-maintenance space for outdoor seating, storage or simply enjoying a bit of fresh air without the upkeep of a full garden.
LOCATION & LIFESTYLE
Cranbrook Road sits in a friendly, well-established residential pocket just outside Doncaster city centre, making day-to-day living incredibly easy. You’re only a short 10-minute drive from the city’s main shopping streets, Frenchgate Centre, supermarkets like Tesco and Aldi, and a variety of local cafés and independent stores — perfect for those who enjoy having amenities close by.
For commuters, Doncaster Train Station is within easy reach, offering fast connections across Yorkshire and beyond. Major bus routes run close to the street, and the A630 provides quick road access around Doncaster, making this a practical base whether you work locally or travel further afield.
Leisure-wise, you’re close to the city centre’s restaurants, gyms, coffee shops and entertainment venues. Parks and green spaces are also accessible for dog walking or weekend strolls, while the area’s handy layout makes it easy to get around without relying on a car.
Families and future planners will appreciate the choice of nearby schools, including Town Field Primary, Park Primary (rated Good) and Hall Cross Academy — all within walking or short travelling distance, adding to the area’s long-term appeal for both occupants and tenants.
A comfortable home in a brilliant spot — ideal for anyone wanting convenience, space and an easy move.
MATERIAL INFORMATION
________________________________________
Part A – Key Facts
• Tenure: Freehold
• Council Tax Band: A (Doncaster Council)
• EPC Rating: C (71)
• Property Type: Mid-terrace
• Floor Area: Approx. 922 sq. ft
________________________________________
Part B – Property Details
• Bedrooms: 2
• Bathrooms: 1
• Reception Rooms: 2
• Parking: On-street
• Heating: Gas conbi boiler band A
• Electricity: Mains electricity
• Water & Drainage: Mains water + mains drainage
________________________________________
Part C – Material Information (Vendor Advised)
Building Safety
• No known structural or building safety concerns.
• No known fire safety issues.
Damp, Rot & Previous Remedial Works
Damp treatment carried out:
– Damp course installed to the back living room in 2006
– Dry rod damp course installed to the kitchen in 2025
Guarantees:
– No guarantees available
Planning, Works & Restrictions
• No planning applications submitted.
• No building regulations approvals required for any works completed.
• No known restrictive covenants, easements or rights affecting the property.
Environmental & Location Factors
• Not in a known flood risk or erosion area.
• No known contamination issues.
• Not in a designated radon-affected area.
• No nearby landfill or environmental hazard known to the vendor.
• Standard brick-built construction.
Mining, Ground & Infrastructure
• No known coal or mining risk.
• Not within a Coal Authority reporting zone.
Connectivity
Broadband:
• Full Fibre (FTTP) available in the area.
• Buyers can check speeds via the Openreach Fibre Checker.
https://www.openreach.com/fibre-checker/my-products
Utilities & Services
• Gas: Mains gas connected.
• Electric: Mains electricity
• Water: Mains water.
• Drainage: Mains sewer connection.
Accessibility
•Right of access through neighbouring land: Yes – gated alleys to the rear.
•Other people having a right of access through this property: No.
All information above has been provided by the seller and should be verified by prospective purchasers. This material information is supplied in accordance with Trading Standards and the Consumer Protection Regulations.
Please be aware that both sellers and buyers will incur a £70 inc VAT fee per person, for the completion of Anti-Money Laundering verifications under the regulations we have to follow.
Upon receipt of any offer, these steps will follow.
1. Any offer put forward will be qualified by Anita, our independent financial advisor who will give you a call to discuss how you will be funding this purchase.
2. We require proof of your finances for your purchase. This will be evidence of where your cash is held e.g. bank statement, proof of mortgage/mortgage in the principal or if your finances are from a sale on a property, we will require details of your solicitor acting for you to confirm.
3. Once a sale is agreed you will then be required to provide solicitor details. We can provide you with a competitive conveyancing quote.
Read less
Important Information
- This Council Tax band for this property is: A
- EPC Rating is C
Key Info
- Two generous reception rooms
- Modern, well-fitted galley kitchen
- Two good-sized bedrooms
- Spacious first-floor bathroom
- Private, low-maintenance rear courtyard
- Great for first-time buyers or investors